Cécile Chapet | architecte d'intérieur

Menu

Aller au contenu principal
  • Réalisations
  • à propos
  • Tarifs
  • contact

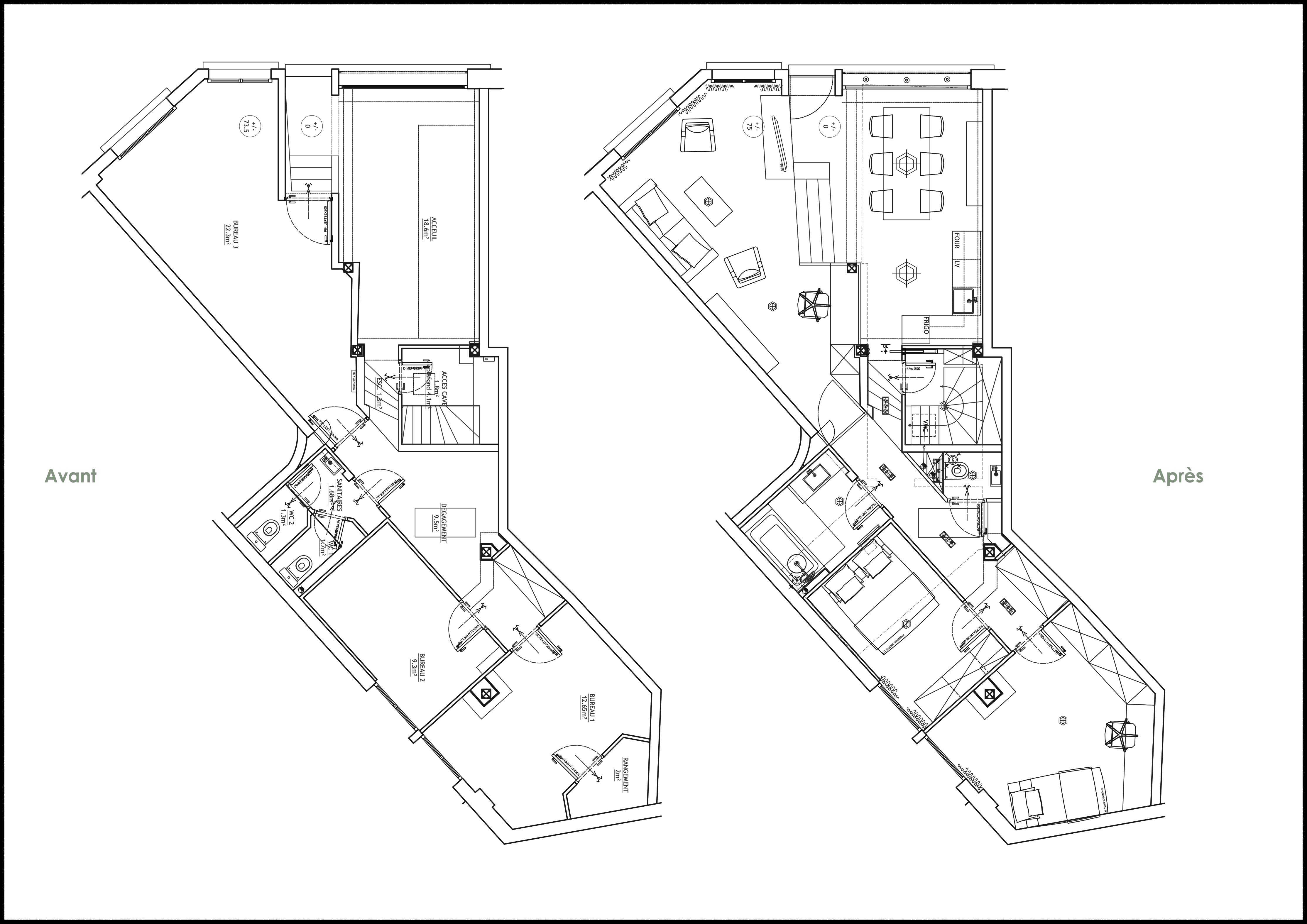
Réalisations

Gadgets

mentions légales :

  • cecile.chapet@gmail.com
Créez un site ou un blog sur WordPress.com
    • Cécile Chapet | architecte d'intérieur
    • S’inscrire
    • Connexion
    • Copier lien court
    • Signaler ce contenu
    • Gérer les abonnements